
Raummodule
Raummodule-Beispielplanungen
Profitieren Sie von unserer langjährigen Erfahrung und lassen Sie sich von unseren Bürocontainer und Sanitärcontainer Projekten und unzähligen Referenzen inspirieren.
Für jedes Projekt überprüfen und lösen wir komplexe Details und entwerfen technische Zeichnungen in der Vorbereitungsphase.

Dies ermöglicht es uns, dem Kunden einen Festpreis für das gesamte Projekt anzubieten. Es erlaubt uns auch, die Entwicklungsphase schneller durchzuführen, sobald das Projekt genehmigt wurde.

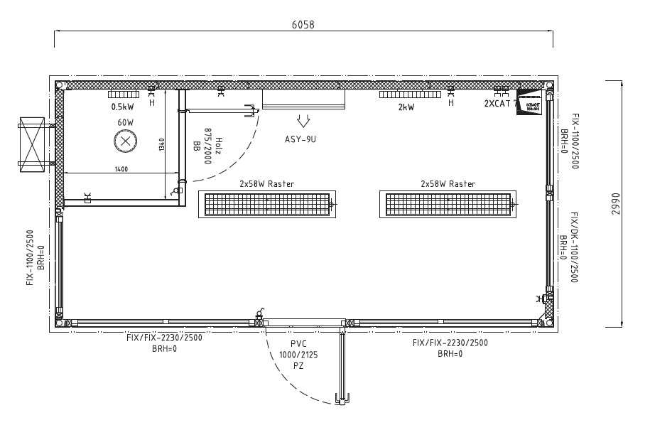
Sanitärcontainer Skizze
Dies ermöglicht es uns, dem Kunden einen Festpreis für das gesamte Projekt anzubieten. Es erlaubt uns auch, die Entwicklungsphase schneller durchzuführen, sobald das Projekt genehmigt wurde.
Wir entwerfen unsere Projekte nach den Standards des Business Information Modelling und verwenden modernste Software für technische Berechnungen, die uns einen klaren technischen Überblick über die Projekte gibt.
Einzelanlage 2,5 x 6 m / 3 x 6 m.
Die kleinste Einheit des Raummoduls hat eine Grundfläche von ca. 15 m². Bei den Einzelanlagen besteht die Möglichkeit, dass wir die Attika werkseitig montieren. Einer sofortigen Inbetriebnahme nach dem Abladen steht somit nichts mehr im Wege.
Doppelanlage 6 x 5 m / 6 x 6 m.
Das Raummodul als Doppelanlage mit den Abmessungen 6x6m bietet genügend Raum für 2 bis 3 Arbeitsplätze, mehrere Sanitäreinheiten oder Unterkunftsbereiche, um die Privatsphäre zu schützen, können optional beliebig Trennwände in die Raummodul-Anlage eingezogen werden.
Mehrfachanlage.
Je nach Kundenwunsch werden die Container in individueller Höhe, Breite und Länge produziert. Ob Einzellösung oder Mehrfachlösung, die Raummodule von Hacobau zeichnen sich durch Flexibilität und ein hervorragendes Preis - Leistungsverhältnis aus. Die Außengestaltung und Innenausstattung reicht von Standardausstattung bis hin zu Sonderausstattungen. Auch mit Sanitär- oder Küchenbereich.
Mehrfachanlage mit Übergabe Carport.

Um Fahrzeugübergaben selbst bei schlechtem Wetter im Trockenen durchführen zu können, haben wir für Sie den Verkaufspavillon mit Übergabeplatz entwickelt. Es handelt sich hierbei um ein erweitertes Vordach, welches sich dank umlaufender Attika optisch vollständig in die Anlage integriert. Die Innenhöhe passen wir stets individuell auf Ihre erforderlichen Gegebenheiten an, sodass darunter nicht nur Pkws, sondern auch Nutzfahrzeuge ihren Platz finden können.
Technologie:
Die Übertragung der Details von digitalen Entwürfen in die Realität ist der Schlüssel zu unserer Arbeit. Höchste Qualitätsstandards erreichen wir durch die strenge Kontrolle unserer Produktionsprozesse.
Auf Basis von über 600 Referenzen können die Kunden die gestalterische Richtung vorgeben und erhalten kostenfreie, unverbindliche individualisierte Ausführungsskizzen sowie ein preiswertes Angebot.
Modulbau: Raummodule / mobile Raumsysteme.
Hochqualitative Standardvarianten und innovative Individuallösungen.
Hacobau GmbH sorgt für einen reibungslosen Ablauf, vom Entwurf bis zur Bauübergabe.
Unsere deutsche Ingenieurabteilung gewährleistet, dass ausschließlich hochwertige Materialien zum Einsatz kommen, die aufgrund ihrer Güte eine lange Lebensdauer aufweisen. Regelmäßige Innovationen gehören dabei zu unserem einzigartigen Standard. Stets am Puls der Zeit und auf die hohen Anforderungen unserer Kunden aus allen Branche zugeschnitten. Billiglösungen können andere besser.
Produktion:
Die Module werden in einer kontrollierten Umgebung produziert, was uns erlaubt, sie schneller und in einer kürzeren Durchlaufzeit von der Bestellung bis zur Fertigstellung zu produzieren.
Montage:
Wir führen alle möglichen Montagen von Tischlerarbeiten, Trennwänden, mechanischen und elektrischen Installationen während der Produktion durch, um die Montagezeit vor Ort so weit wie möglich zu reduzieren.
75% Bauzeitersparnis gegenüber klassischem Bau. Die Preise für unsere Raummodule oder Raummodulanlagen sind verglichen mit einem konventionellen Gewerbebau um ca. 50 % günstiger. Der Fertigungsprozess erfolgt nach Anforderungen der ISO 9001.
Energieeinsparverordnung (EnEV).
Die Berücksichtigung der Verordnung trägt dazu bei, die Heizkosten zu reduzieren. In der Energieeinsparverordnung (EnEV) ist definiert, welche energetischen Anforderungen beheizte und klimatisierte Gebäude erfüllen müssen. Wir erfüllen jeweils die aktuellen Normen und darüber hinaus.












